KONTAKT E: post[at]duck.de Aubinger Str. 99 81243 München
“Alle Träume können wahr werden, wenn wir den Mut haben ihnen zu folgen” Walt Disney
© 2024  DUCK
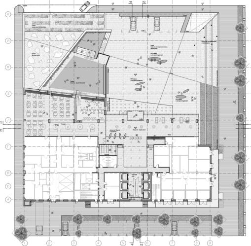
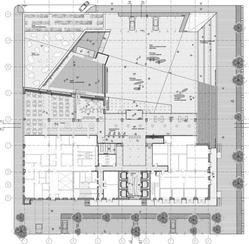
Eingeladener Design-Wettbewerb - Businesscenter “Stealth” in Moskau Design, Innenarchitektur Lobby, Restaurant, Landschaftsarchitektur Gesamtplanung: Kisselov & Partners, Moskau